高腳屋

一座山坡地住宅, 7扇完全打開的落地窗,巧妙的將山林美景收納入客廳,模糊的室內外界限,讓建築與自然景觀融為一體 。房子顯露寧靜、恬淡、質樸、和諧的氣質。住宅本身也是山林的一景,以謙卑的姿態融入環境。

年份 : 2013 - 2016

所在地 : 台灣 雲林古坑

設計 : 王曉奎建築師事務所

           王曉奎、洪子甯

結構 : 王儷燕結構技師事務所

機電 : 華邦水電工程有限公司

水保 : 林南勝水保技師事務所

景觀 : 水龍組 工務所

 

施工團隊

        營造 : 水龍組 工務所

        鋼構 : 銘富鋼構

        金屬 : 久鋐金屬

        彩鋼 :  鎧億鋼品

     木門窗: 正懿木作

         木瓦: 奕穎實業

 木工師傅: 簡宏恩

         鋁窗: 匠柏

 泥作師傅: 陳進一

     木地板: 田佳弘

 衛浴廚具: 柏熹衛浴

 燈具窗簾: 金泓 許淑玲

 

面積 : 280 m²

用途 : 建築住宅

攝影 : 鄭錦銘

基地座落在雲林山坡上,四周被山林美景環繞,開闊的視野可遠眺層層疊起的山巒,台灣的西部海岸線消失於視野的盡頭。

為了減低對環境的衝擊,以高腳屋之姿輕觸大地,儘量不改變原來的地貌。將房子抬高後有了更佳的視野,同時杜絕外界的干擾,讓住宅能保有極佳的隱私性。

 

斜屋頂下的起居空間高挑而寬敞,可完全開啟的落地窗將周遭美景帶入室內,空間讓人舒適而自在。向外延伸的平台是友善的雙手,邀請白雲與山嵐在屋裡自在穿梭,四季更迭的蒼鬱綠意是屋內最美的畫作,這個空間既是室內的山林,也是自然的客廳,空間簡單適性,生活其中,悠然地享受山林生活樂趣。

 

 

鋼構造搭配台灣常見的彩色鋼板外牆,材料有親和力且取得容易,乾式構造減少了混凝土的使用,且在山上施工容易。柚木門窗為這房子增加了溫潤質感;斜屋頂上有樸實的木瓦;不鏽鋼網及細緻欄杆展現現代工藝的精準度;簡約的傢俱伴隨著安靜的空間氛圍。整體呈現和諧地空間樣貌,也帶出主人的人文氣質。

 

Stilted House

Gentle touch of ground.

Located on a hillside in Yunlin and surrounded by mountains and beautiful scenery, Stilted house has a broad view of Taiwan’s western coastline for as far as the eye can see.

In order to reduce the impact on the environment, the house is raised to preserve the original landscape and provides a better view while eliminating outside interference and maintaining privacy within the residence.

The owner’s religious beliefs advocate natural simple living and focus on the quality of the space and material textures. These beliefs along with qualities are the essence of the building which drives the form.

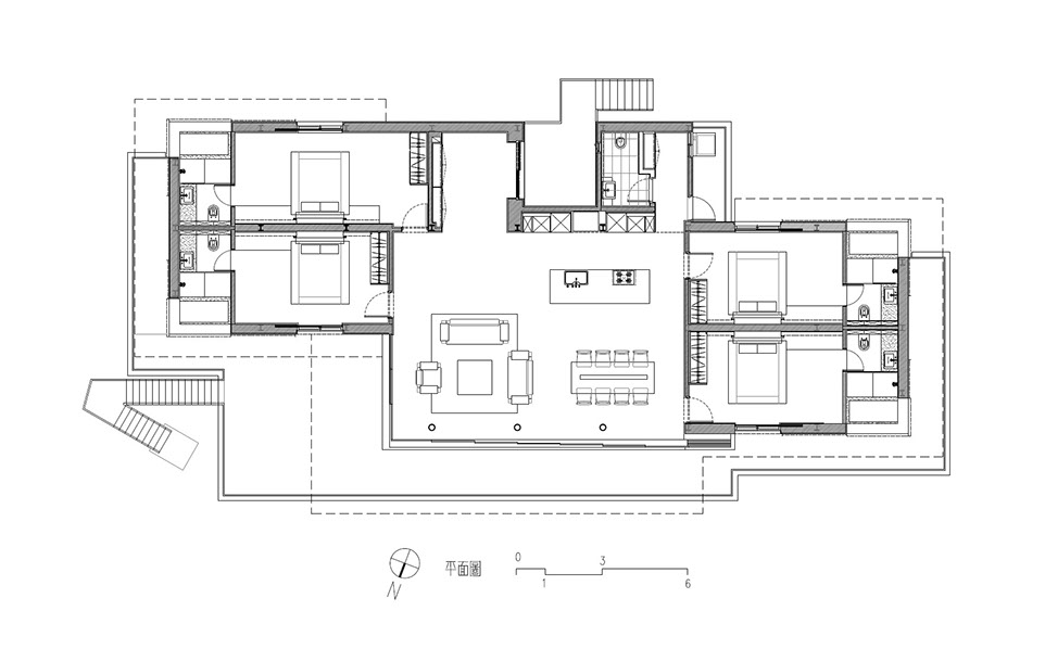
Located in the middle, the family area is the main activity area and is connected to the living room, a Nakajima style kitchen, an outdoor platform steel staircase that connects to a pool underneath the house surrounding both sides of the house. With a total of four private suites, each suite can enjoy a corner bath and enjoy the panoramic views.

The corridor of the house allows the owners not only to enjoy the adjacent views but also emerges them in the natural beauty of the entire region.

The living space is under a sloping roof that creates a tall and spacious environment. The floor to ceiling windows bring in the beauty of the surroundings and create a tranquil living space. Outside the balcony invites the white clouds and the surrounding mountains into the house. With the changing of the four seasons the landscape creates beautiful views and resembles an indoor forest within the living room, creating leisurely mountain life.

The use of steel allows for the reduction of use in concrete and makes construction easier on the mountain side, leaving less of an environmental footprint. Teak doors and windows increase the warmth of the space and a shingled inclined roof with stainless steel mesh and railings incorporate modern materials. The use of simple furniture and a quiet space bring a harmonious appearance of space for the owner.

 

Quiet, tranquil, rustic, harmonious shows the representation of the house.

The house itself is also a scene of the mountains with a humble gesture into the environment; giving inhabitants a comfortable feeling in order to have a richer life.

 

Copyright © Wang hsiao kuei Architects