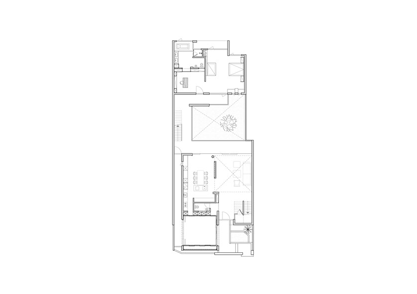
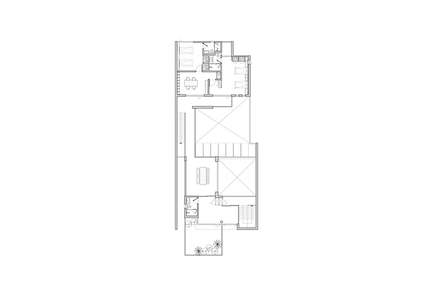
中庭之家

住宅將房子分成前後二棟中間安排一個中庭以確保這房子有良好的日照採光與通風二棟間在二樓有橋連繫彼此二支樓梯在前棟與中庭各據一端形成在空間中可洄游的動線。

年份 : 2014 - 2015

所在地 : 台灣 雲林斗南

設計 : 王曉奎建築師事務所

營造 : 水龍組 工務所

面積 :  388 m²

用途 :  建築住宅

攝影 :  鄭錦銘、郭庚典

 

前棟屬性是對外開放的,起居,餐廚及二樓的書房空間,後棟則是私密的臥室,所有的空間皆圍繞著中庭,大面開窗面向著中庭取景,這住宅有著極加的私密性,來訪的客人,可自在的在前棟與中庭間活動,對後棟臥室空間,也不會造成干擾。

 

 

 

 

推開大門,從屋外進入室內,立即見到盈滿天光與綠意的中庭,有種別有洞天的感覺。中庭內有個水池,池畔種了棵枝葉婆娑的五葉松,水中倒影伴隨著悠游的魚兒,共構出美麗的畫面。

 

Atrium House

Gentle touch of ground

A house with a deeper depth, an atrium is arranged in the middle, dividing the house into two parts. Natural light and good ventilation are allowed in this setting. On the second floor, there’s a bridging structure connecting the two building spaces. In addition, two sets of stairs are located at the front zone and atrium respectively, forming a fluid loop of circulation route through the outdoor space. The house offers two different spaces that is divided by the atrium. The front part of the house is an open zone that consists of living room, kitchen, as well as the library on the second floor. The back part is an intimate space where family bedroom is located. All the spaces are organised around the atrium, looking out the view of the atrium with floor-to-ceiling window. The house provides strong privacy. The guests can have a comfortable visit in the front building without interfering the host’s private place.

 

Opened the door from the outside into the interior, immediately saw the sky filled with green atrium kind of amazing feeling, there is a pool inside the atrium, poolside planted five pine trees swaying branches, reflection in the water along with the fish swimming total configuration of a beautiful picture, the gurgling sound of water splashing, a lot of water vapor, like a natural air-conditioning, high-ceilinged living room living space to make the space seem atmosphere, but also to the living room and den 2F with dialogue and interaction, smallpox and The wooden walls, increase a little warm atmosphere, where holidays do not go, brew a pot of tea and chatting with friends, listening to jazz music Sonny Clark (Cool Struttin) mixed with cheerful laughter, spend a pleasant in the afternoon.

Copyright © Wang hsiao kuei Architects